ROHBAU VILA S POGLEDOM NA MORE

Vrsta objekta

spavaća soba

kupaonica

Udaljenost od mora
Vila
5
5
6 km

životni prostor

Površina posjeda

podovi

Godina izgradnje
287 m²
601 m²
2
2024

Opis nekretnine
Moderna novogradnja villa s bazenom u roh bau stanju u Galižani – Savršena za individualiste!
Na prodaju je prostrana novogradnja villa u roh bau stanju u Galižani, između Pule i Vodnjana. Idealna za sve koji žele završiti svoj dom prema vlastitim željama. Nekretnina pruža izvrsnu osnovu: Kuća je već izgrađena, svi prozori uključujući mreže protiv komaraca su postavljeni, a bazen betoniran. Unutarnje uređenje može se oblikovati prema vašim željama.
Osnovne značajke ville:
- Površina zemljišta: 601 m²
- Stambena površina: cca 287 m²
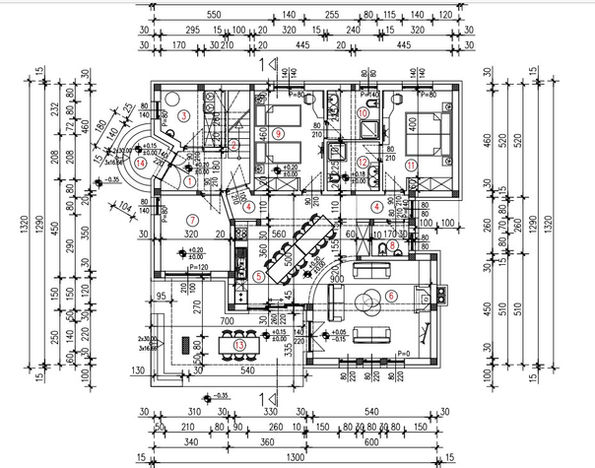
- Katovi: Prizemlje i kat
- Sobe: 8
- Otvorena i prostrana kuhinja s blagovaonicom
- Prostran, svijetao dnevni boravak
- Pet do šest spavaćih soba, svaka s vlastitom kupaonicom
- WC za goste
- Ured ili prostor za fitness
- Tehnička prostorija
Raspored kata:
- Tri dodatne spavaće sobe, svaka s vlastitom kupaonicom
- Velika kuhinja koja se po potrebi može koristiti kao dodatna spavaća soba
- Izlaz na sunčani veliki balkon s prekrasnim pogledom na more
Lokacija:
Villa se nalazi u Galižani, u neposrednoj blizini povijesnog centra mjesta. Pruža savršenu ravnotežu između mira i blizine važnih sadržaja:
- Blizina plaže: Samo 6 km do Fažane s prekrasnim šljunčanim plažama i pogledom na Brijunsko otočje
- Trgovine: Dućan s prehrambenim proizvodima udaljen nekoliko metara, veći trgovački centri na 5 km u Puli
- Priroda: Okružena mediteranskim šarmom i u blizini Nacionalnog parka Brijuni
Dodatni detalji:
- Građevinska dozvola i projektna dokumentacija: Već dostupni
- Komunalni doprinosi: Plaćeni
- Priključci: Voda i struja na cesti
- Dio materijala već osiguran: Izolacija, bitumenska traka, gipskartonske ploče
Naša usluga za vas:
Putem naše njemačko-hrvatske mreže voditelja gradnje, obrtnika svih struka i dobavljača, često i iz Njemačke, možemo po vašoj želji osigurati individualnu ponudu za završetak ove ville. Tako se možete opustiti i biti sigurni da je vaš dom iz snova u profesionalnim rukama.
Vaš dom iz snova s potencijalom
Iskoristite priliku da modernu villu oblikujete potpuno prema svojim željama. S prostranim rasporedom, prekrasnom lokacijom i neometanim pogledom na more, ova nekretnina pruža sve što je potrebno za luksuzan život pod suncem Istre.
Kontaktirajte nas još danas kako biste saznali više o ovoj izvanrednoj nekretnini ili dogovorili termin za razgledavanje!
**Lokacija:**
Galižana je slikovito naselje smješteno u srcu istarskog poluotoka u Hrvatskoj. Poznata po svojoj autentičnoj atmosferi i povijesnom značaju, Galižana oduševljava šarmantnim kamenim kućama, uskim ulicama i bogatom tradicijom. Naselje se nalazi na blagom brežuljku, pružajući zadivljujuće poglede na okolne maslinike i vinograde. Povijesne građevine, poput starih crkava i tradicionalnih kuća, daju mjestu jedinstven karakter.
Okolica Galižane obilježena je idiličnim prirodnim krajolikom. Samo nekoliko kilometara dalje nalazi se živopisni grad Pula s impresivnim rimskim amfiteatrom, brojnim restoranima, trgovinama i kulturnim događanjima. Prekrasne plaže Jadranske obale također su brzo dostupne i idealne za opuštanje i uživanje u kristalno čistom moru.
Ljubitelji prirode mogu istraživati okolne biciklističke i pješačke staze koje vode kroz mediteranske krajolike. Regija također nudi brojne mogućnosti za izlete u šarmantna obalna mjesta, prirodne parkove i povijesne znamenitosti.
Galižana spaja mir, prirodu i kulturnu raznolikost, čineći je savršenim mjestom za sve koji žele doživjeti autentičnu Istru.
Opis nekretnine
- Školjkasta konstrukcija s bazenom
- Blizina centra, lijepa lokacija
- Priključak na dimnjak
- Kanalizacija u pripremi
- 2 parkirna mjesta
- Udaljenost od mora: 6 km
- Trgovina: 0,2 km
- Restorani: 5 km
- Zračna luka Pula: 13 km
Položaj nekretnine
Ulica Giuseppe Leonardelli 16, Galižana, Kroatien































































