ATRAKTIVNO GRAĐEVINSKO ZEMLJIŠTE SA GRAĐEVINSKOM DOZVOLOM



482 m²
1
12

Opis nekretnine
Pronađite jedno od pet građevinskih zemljišta s građevinskom dozvolom za dvokatnicu s 3 spavaće sobe i bazenom u blizini Pule, samo 12 km od mora.
Prodaje se pojedinačno ili kao cjelina - između 305 i 482 m² + dio prilaza - jedinstvena cijena od 47.000 EUR do 57.000 EUR ili svih pet nekretnina s pristupom za 210.000 EUR, sve kuće s 3 spavaće sobe i bazenom
Prodaje se ukupno 5 građevinskih zemljišta s građevinskim dozvolama za kuće za odmor s bazenima u Istri, u malom mjestu nedaleko od Pule. Oni se mogu kupiti pojedinačno ili zajedno. Ako kupite svih pet nekretnina uključujući pristupnu nekretninu (ukupno 2.230 m²), kupoprodajna cijena je 210.000 EUR, odnosno 95 EUR/m². Cijene za pojedinačnu kupnju možete pronaći ispod.
Projekti su predani nadležnom tijelu i čekaju na izdavanje građevinskih dozvola. Nekretnina je bez tereta. Također je moguće dogovoriti gradnju kuće do faze šuštanja, zemljane radove i dr. Pristupni put je dostupan, imanje se nalazi u središtu sela okruženo kućama, kućama za odmor i sl. Projekti su koncipirani na način da se mogu koristiti i kao stambena kuća i kao nekretnina za iznajmljivanje. Želite li umjesto bazena imati vrt, odluka je vaša. Također postoji mogućnost kupnje poljoprivrednog zemljišta od 2.110 m² neposredno uz. U blizini imanja nalazi se malo imanje i privatne kuće.
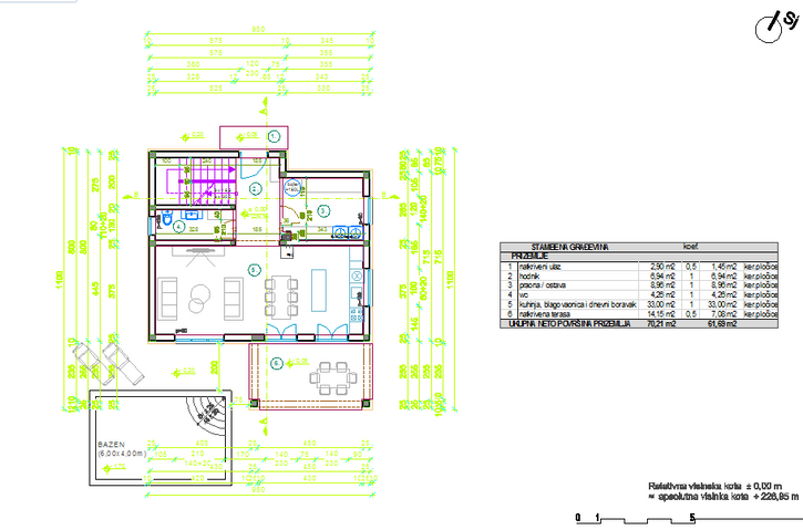
1. Građevinsko zemljište veličine 418 m² + dio pristupne ceste sa projektom za dvokatnicu oznake K5, sa 3 spavaće sobe, otvorenim dnevnim dijelom sa kuhinjom, 2 kupaonice, terasom i bazenom, bruto 174 m².
Cijena navedene nekretnine: 57.000 eura sa kompletnom projektnom dokumentacijom.
2. Građevinsko zemljište veličine 353 m² + udio pristupne ceste sa projektom za dvokatnicu, oznake K1, na priloženim fotografijama sa 3 spavaće sobe i 3 kupaonice, otvorenim dnevnim boravkom i kuhinjom, terasom i bazenom, bruto 165 m².
Cijena navedene nekretnine: 55.000 eura sa kompletnom projektnom dokumentacijom.
3. Građevinsko zemljište veličine 323 m² + udio pristupne ceste sa projektom za dvokatnicu, oznake K2, na priloženim fotografijama sa 3 spavaće sobe i 3 kupaonice, otvorenim dnevnim dijelom i kuhinjom, terasom i bazenom, bruto 165 m².
Cijena navedene nekretnine: 52.000 eura sa kompletnom projektnom dokumentacijom.
4. Građevinsko zemljište veličine 305 m² + udio pristupne ceste sa projektom za dvokatnicu oznake K3, na priloženim fotografijama sa 3 spavaće sobe i 3 kupaonice, otvorenim dnevnim dijelom i kuhinjom, terasom i bazenom, bruto 170 m².
Cijena navedene nekretnine: 47.000 eura sa kompletnom projektnom dokumentacijom.
5. Građevinsko zemljište veličine 482 m² + dio pristupne ceste sa projektom za prizemnicu, oznake K4, sa tri spavaće sobe i dvije kupaonice, otvorenim dnevnim dijelom i kuhinjom, terasom i bazenom, bruto 120 m². Za detaljnu plansku dokumentaciju kontaktirajte nas.
Cijena navedene nekretnine: 53.500 eura sa kompletnom projektnom dokumentacijom.
Također je moguće kupiti sve nekretnine u paketu za 208.000,00 eura. Prodaje Croatian GmbH
PDV se trenutno ne primjenjuje.
Za detaljnu plansku dokumentaciju kontaktirajte nas.
Udaljenost od zračne luke Pula: 15 km
Udaljenost do plaže: 12 km
Mjesto:
Nekretnine se nalaze u malom mjestu između Filipane i Pule u jugoistočnom dijelu unutrašnjosti Istre, samo 15 km od Pule i 12 km od Fažane, najbližeg turističkog središta na obali. Mirna istočna obala Istre udaljena je samo nekoliko kilometara. Ovo mjesto je idealno za one koji cijene netaknutu prirodu, domaću kuhinju i vino, kao i za one koji žele mir i tišinu dok imaju priliku istraživati obližnja sela za izlete i razgledavanja. Budući da se iz grada do mora stiže za 10-tak minuta vožnje automobilom, ova lokacija se preporuča kako za život tako i za turistički najam. Blizina atraktivnih seoskih imanja i starih istarskih gradića također čini mjesto privlačnim za ljubitelje tradicionalne hrane i ljubitelje istarske gastronomije.
Pula, udaljena samo 15 km, najveći je i najstariji grad u Istri, a svojom bogatom poviješću danas je i turističko i kulturno središte regije. Zahvaljujući savršenom spoju kulture iz rimskog doba, prekrasnih uvala za kupanje i moderne turističke ponude, svake godine privlači posjetitelje iz cijelog svijeta! Pula je najpoznatija po svom starom amfiteatru, poznatom i kao pulska Arena. Druga najveća arena u Rimskom Carstvu građena je od 2. pr. Izgrađen između 1400. godine prije Krista i 1400. godine nove ere i šesti je najveći te vrste na svijetu. Brojne su i druge znamenitosti Pule koje vas pozivaju da ih otkrijete.
Opis nekretnine
- Otvoreno
- s pet projekata uključujući građevinske dozvole
- 5 pojedinačnih građevinskih parcela između 305 i 482 m² + pristup zemljištu
- Udaljenost od mora: 12
- Zračna luka Pula: 15 km
Položaj nekretnine
Filipana, Kroatien

































